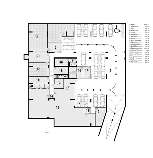
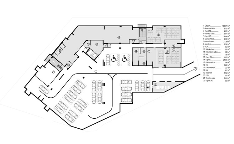
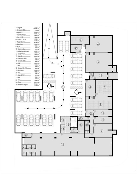
İZMİR BAYRAKLI KENTSEL DÖNÜŞÜM KONUT PROJESİ
Bu kentsel dönüşüm projesi, İzmir'in Bayraklı ilçesinde yer almakta olup, 3 parselden oluşmaktadır. Her parselde, 7 normal katlı bloklar bulunmaktadır. Blokların bodrum katlarında kapalı otoparklar yer almaktadır, zemin katlarda ise her bloğa özgü farklı metrekarelerde dükkan ve daire girişleri planlanmıştır. Zemin kat alanlarında ayrıca peyzaj düzenlemeleri, spor sahaları, çocuk oyun alanları ve ortak alanları tasarlanmıştır.
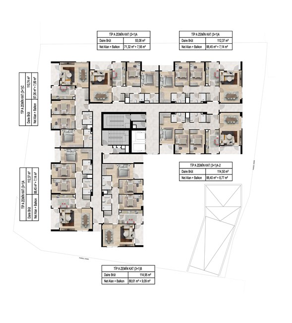
Blok tipolojilerine göre normal katlarda 6 ila 8 arasında değişen daire sayıları bulunmaktadır. Daire tipolojileri, 2+1 ve 3+1 olarak tasarlanmıştır. Dairelerin yerleşim planları, blok tiplerine göre optimize edilerek kullanıcı konforu ve işlevsellik ön planda tutulmuştur.
Projede yer alan her parsel, fonksiyonel ve estetik açıdan uyumlu bir şekilde düzenlenmiş olup, modern kent yaşamının gereksinimlerine yanıt verecek şekilde planlanmıştır. Cephe ve kütle tasarımında modern geometrik formlar ve doğal materyaller kullanılmıştır. Projede, ortak açık otopark ve park alanlarının, blokların zemin katında bulunan ticari birimlerle entegrasyonu sağlanarak, işlevsel bir düzenleme hedeflenmiştir. Bu tasarım yaklaşımı, ticari birimlerin ve park alanlarının birbirini tamamlayacak şekilde konumlandırılmasını ve kullanıcıların her iki alanı da verimli bir şekilde kullanabilmesini amaçlamaktadır. Otopark ve park alanlarının konumlandırılması, ticari faaliyetler ile günlük yaşam arasındaki etkileşimi optimize etmek için stratejik bir şekilde planlanmıştır. Proje, kentsel dönüşüm kapsamında ele alınan parsellerde, orta yoğunluklu konut yerleşimi anlayışıyla tasarlanmış, avlu etrafında kurgulanan blok düzenine sahip bir yerleşim modelidir. Yapılar, çevre dokuyla uyumlu yüksekliklerde çözümlenmiş olup, kütle yerleşiminde iç avluya yönelen bir organizasyon tercih edilerek hem mahremiyet hem de kontrollü sosyal etkileşim hedeflenmiştir. Cephe tasarımında düşey ve yatay bantların ritmik kullanımı ile sade fakat karakterli bir mimari dil oluşturulmuş; açık tonlu yüzeyler ile koyu renkli çerçeve elemanları ve ahşap dokuların birlikte kullanımıyla görsel derinlik sağlanmıştır. Geniş pencere açıklıkları ve balkonlar aracılığıyla doğal aydınlatma ve havalandırma maksimum seviyeye çıkarılmıştır.
Yerleşimin merkezinde konumlanan peyzaj alanı, çocuk oyun alanları, oturma-dinlenme birimleri ve rekreatif donatılarla desteklenerek kullanıcılar için nitelikli bir ortak yaşam alanı sunmaktadır. Zemin katlarda yer alan ticari birimler ve yarı kamusal alanlar, site ile çevresi arasında geçiş zonu oluşturarak kentsel sürekliliği güçlendirmektedir. Araç ve yaya sirkülasyonu birbirinden ayrıştırılmış, otopark çözümleri parsel içinde kontrollü şekilde ele alınarak yüzeydeki araç yoğunluğu minimize edilmiştir. Peyzaj tasarımında yeşil süreklilik esas alınmış, mevcut doğal doku güçlendirilerek yapı kütleleri ile bütünleşik bir çevre oluşturulmuştur. Proje genelinde sürdürülebilirlik, kullanıcı konforu ve kent kimliği ile uyum ön planda tutulmuş; çağdaş yaşam standartlarına uygun, dengeli ve işlevsel bir konut çevresi tasarlanmıştır.